一独栋住宅地面和墙面辐射系统的设计
跳转到导航
跳转到搜索
| 产品 | InstalSystem 5 |
| 文章类型 | 项目案例 |
| 版本的最新内容 | IS 5.0 Beta 16.1 |
项目说明
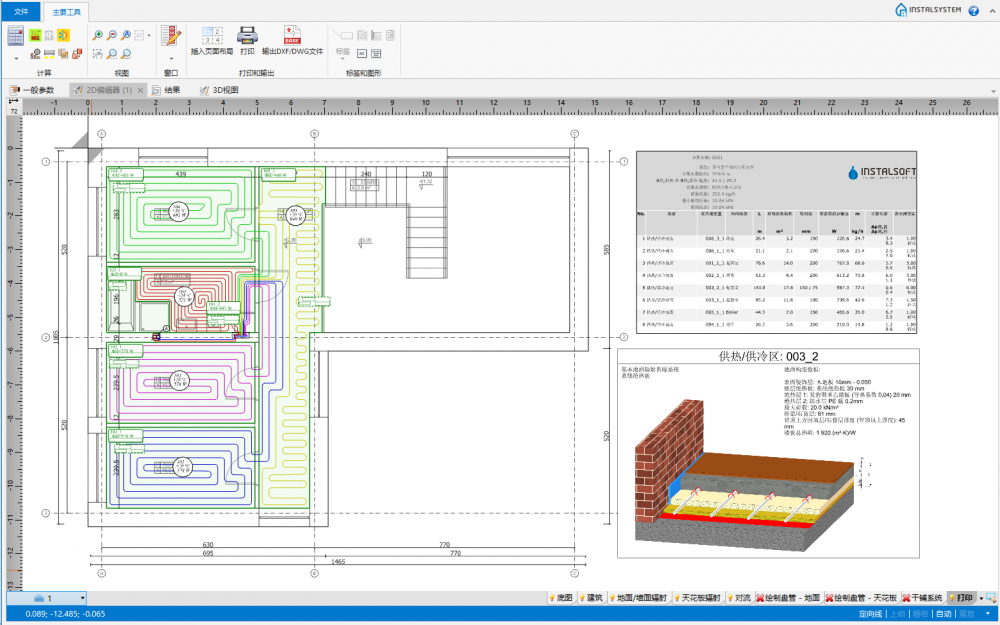
本例说明了某一无地下室的二层建筑采用墙面和地面辐射供暖系统的设计方法
| 项目文件
|
某独栋住宅地面和墙面辐射供热系统的设计, isproj |
| 设计时使用 | InstalSystem 5 Rev. Beta 16.1. |
| 所需模块 | InstalSystem 基本模块 供热系统 5 辐射回路系统 5 |
| 项目范围 | 辐射供热 |
| 所用的产品目录 |
普通辐射系统 |
| 建筑类型 | 独栋住宅 无地下室 2层 |
| 建筑结构 | 首层底图, dwg 二层底图, dwg |
| 图纸范围 | 平面图 |
| 设计者 | www.instalsoft.com |
| 法律免责声明 | 允许复制项目的整个或部分文件 |
| 计算结果 | 全部结果打印输出, xls 全部结果打印输出, pdf 一般供热结果, pdf 材料清单, pdf 安装参数, pdf |
| 设计图纸 | 首层, dwg 二层, dwg 首层, pdf 二层, pdf |

